內容摘要:恒光電器,照亮您的生活,專業LED照明,22年專注照明行業-從科研,開發,設計,到精選優質材料制造,再到生產重量的嚴格控制,保證到用戶手中是優質精選產品-為您提供最安全、穩定的照明解決方案-室內照明燈光設計,照明轉換工程,節能環保工程提供解決照明燈光設計方案
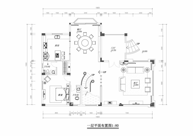
首層150平方米住宅燈光照明設計要求
- 用戶名:穿越未來
- 發布時間:2013-09-23 14:56
- 點擊:169 次
- 裝修用途:住宅裝修
燈光照明設計要求:
我是單家獨戶的住宅,占地250平方米,首層為150平方米的建筑面積,有大廳、飯廳、廚房和一個客房,具體看平面圖紙,我的裝修風格是西式的簡約型,我配什么燈好呢?幫我設計一下。 我喜歡白色的,空間感要大,光線要夠光。我想您先設計一下首層,效果可以的話再設計二層的圖紙。
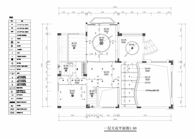
首層150平方米住宅燈光照明設計方案
- 用戶名:恒光設計師
- 裝修用途:住宅裝修
燈光照明設計說明:
1、入室門廳做一個圓型的天花池,池四周用T5-LED燈管做暗槽,中間裝LED蠟燭球泡做的水晶吊燈。 2、中空廳的天花在二層。 3、在大廳旁邊的走道天花造型裝LED筒燈做照明裝飾。 4、通到樓梯和廚房的走道,天花裝COB的LED方形射燈。 5、飯廳做一個大的圓型天花池,池四周用T5-LED燈管做暗槽,中間裝LED蠟燭球泡做的水晶吊燈。 5、廚房、衛生間正中各裝LED吸頂廚衛燈。 6、客房做一個造型的天花暗槽,放T5-LED燈管,四周配LED筒燈。










































































