內容摘要:恒光電器,照亮您的生活,專業LED照明,22年專注照明行業-從科研,開發,設計,到精選優質材料制造,再到生產重量的嚴格控制,保證到用戶手中是優質精選產品-為您提供最安全、穩定的照明解決方案-室內照明燈光設計,照明轉換工程,節能環保工程提供解決照明燈光設計方案
200平方米住宅燈光照明設計要求
- 用戶名:
- 發布時間:2013-07-18 10:52
- 點擊:98 次
- 裝修用途:裝修
燈光照明設計要求:
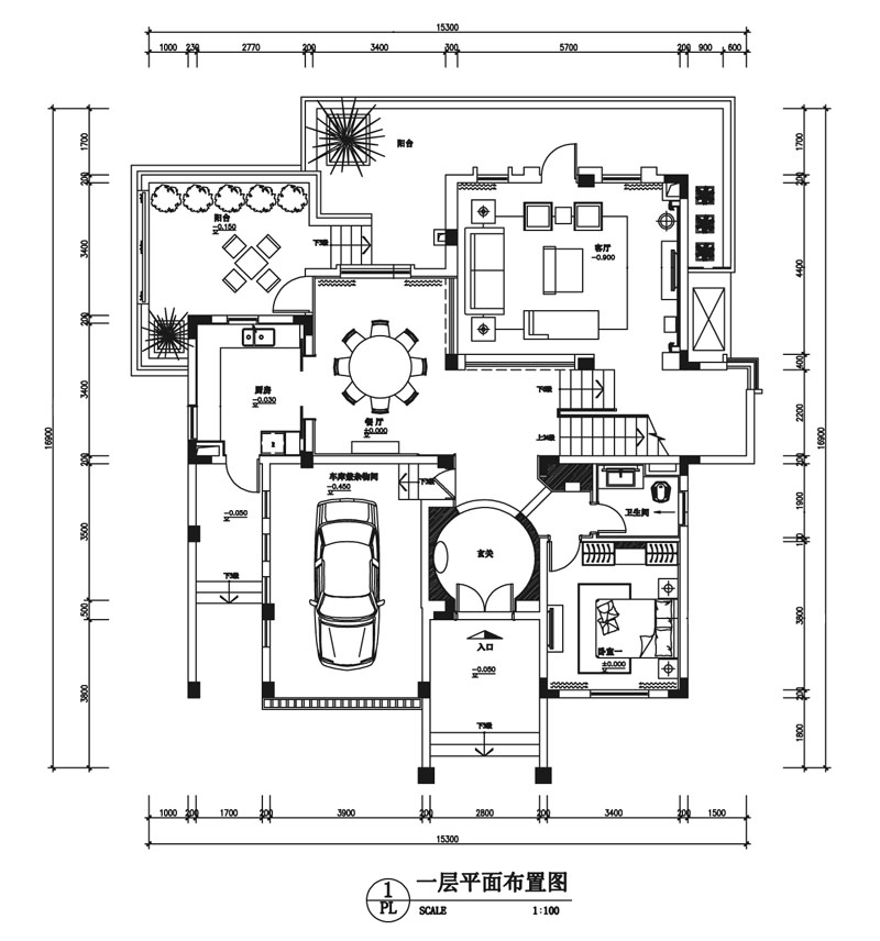
獨戶的住宅,200平方米的建筑面積,有大廳、飯廳、廚房和一個客房,歐式裝修時尚風格。 墻身貼墻紙,歐式家具,要配合黃光襯托。
200平方米住宅燈光照明設計方案
- 用戶名:恒光設計師
- 裝修用途:裝修
燈光照明設計說明:
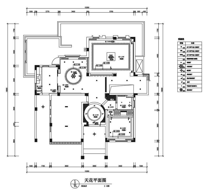
1、入室門廳做一個圓型的天花池,池的四周用T5-LED燈管做暗槽,天花池外裝四個天花燈射燈。 2、走道裝LED筒燈做照明裝飾。 3、飯廳做一個圓型的天花池,池四周用T5-LED燈管做暗槽,中間裝LED蠟燭球泡做的吊燈,池外四周裝LED筒燈做照明裝飾。 4、大廳做一個方型的天花池,池四周用T5-LED燈管做暗槽,中間裝LED蠟燭球泡做的大型水晶吊燈,池外四周裝LED筒燈做照明裝飾。 5、飯廳做一個大的圓型天花池,池四周用T5-LED燈管做暗槽,中間裝LED蠟燭球泡做的水晶吊燈。 5、廚房、衛生間各裝LED吸頂廚衛燈。 6、客房做一個造型的假天花,四周配LED筒燈為主照明。











































































